유찰 1회
한울마을 신창비바패밀리아파트
경기도 화성시 봉담읍 수영리 673 한울마을 신창비바패밀리아파트 201동 9층902호 · 201동동 902호호 · 123㎡ · 9층
D
47점
입지점수
입찰일
2026년 06월 12일 (D-12)
수원지방법원
물건기본정보
유찰1회
| 사건번호 | 2025타경54468 (부동산임의경매) | 물건종류 | 아파트 |
|---|---|---|---|
| 감정평가액 | 416,000,000원 | 최저매각가격 (매수신청보증금) |
416,000,000원
(4,160만원) |
| 입찰방법 | 기일입찰 | 매각기일 | 2026.06.12 10:00 수원지방법원 제101호 법정 (D-12) |
| 소재지 | |||
| 담당 | 수원지방법원 수원지방법원 | 경매9계 | 사건접수 | 2025.02.13 |
| 경매개시일 | 2025.02.14 | 배당요구종기 | 2025.04.29 |
| 청구금액 | 3억 2,861만원 | 상태 | 진행 (유찰 1회) |
| 전용면적 | 123.34㎡ | 층수 | 9층 |
| 건물구조 | 철근콘크리트구조 (철근)콘크리트지붕 17층 아파트 | 준공연도 | - |
| 토지면적 | 70.19㎡ | 대지지분 | 70.19 / 24923.4 |
| 최선순위설정 | 2023.8.23. 근저당권 | ||
물건 사진
1 / 10
×
‹
›
SISETUM 가격 분석
KB시세
420,000,000원
일반거래가 · 2026.03 기준
상한 430,000,000원
일반 420,000,000원
하한 400,000,000원
실거래가
거래 데이터 없음
감정가
416,000,000원
최저입찰가
416,000,000원
최저가 기준 KB 할인율
-1.0%
기일내역
| 기일 | 기일종류 | 기일장소 | 최저매각가격 | 결과 |
|---|---|---|---|---|
| 2026.04.03(10:00) | 매각기일 | 수원지방법원 제101호 법정 | 416,000,000원 | 유찰 |
| 2026.05.08(10:00) | 매각기일 | 수원지방법원 제101호 법정 | 291,200,000원 | 변경 |
| 2026.06.12(10:00) | 매각기일 | 수원지방법원 제101호 법정 | 416,000,000원 | - |
| 2026.06.19(14:00) | 매각결정기일 | 수원지방법원 제101호 법정 | - | - |
목록내역
| 목록번호 | 목록구분 | 상세내역 |
|---|---|---|
| 1 | 집합건물 |
1동의 건물 표시
경기도 화성시 봉담읍 673
한울마을 신창비바패밀리아파트
[도로명 주소]
경기도 화성시 수영로82번길 4 (한울마을 신창비바패밀리아파트)
[1동] 철근콘크리트구조 (철근)콘크리트지붕 17층 아파트
지1층 100.543㎡
1층 359.533㎡
2층 611.4372㎡
3층 611.4372㎡
4층 611.4372㎡
5층 611.4372㎡
6층 611.4372㎡
7층 611.4372㎡
8층 611.4372㎡
9층 611.4372㎡
10층 611.4372㎡
11층 611.4372㎡
12층 611.4372㎡
13층 611.4372㎡
14층 611.4372㎡
15층 611.4372㎡
16층 611.4372㎡
17층 611.4372㎡
[전유] 철근콘크리트구조
123.3429㎡
전유부분의 건물의 표시
건물의 번호 : 201동 9층902호
구 조 : 철근콘크리트구조 (철근)콘크리트지붕 17층 아파트
면 적 : 123.34㎡
대지권의 목적인 토지의 표시
[전유] 경기도 화성시 봉담읍 수영리 673 지목:대 면적:24372.1㎡ 지분:70.1928/24923.4
[전유] 경기도 화성시 봉담읍 수영리 673-1 지목:대 면적:551.3㎡ 지분:70.1928/24923.4
대지권의 종류 : 소유권
대지권의 비율 : 24923.4 분의 70.19
|
경매 진행 타임라인
1차 경매
416,000,000원
2026.04.03
유찰
2차 경매
416,000,000원
2026.06.12
진행중
현재 진행중
현황조사서
| 사건번호 | 2025타경54468 | 조사일시 | 2025년02월24일12시01분 |
|---|
부동산의 점유관계
임대차관계 조사서
| 번호 | 소재지 | 임차인 | 보증금 | 월세 | 전입일 | 확정일 |
|---|---|---|---|---|---|---|
| 1 | 경기도 화성시 봉담읍 수영리 673 한울마을 신창비바패밀리아파트 201동 9층902호 | - | - | - | - | - |
| 2 | 경기도 화성시 봉담읍 수영리 673 한울마을 신창비바패밀리아파트 201동 9층902호 | - | - | - | - | - |
| 3 | 경기도 화성시 봉담읍 수영리 673 한울마을 신창비바패밀리아파트 201동 9층902호 | - | - | - | - | - |
부동산의 현황
해당 부동산의 현황은 외
부동산표시목록
| 번호 | 소재지 | 용도/구조/면적 | 비고 |
|---|---|---|---|
| 1 |
경기도 화성시 수영로82번길 4 (한울마을 신창비바패밀리아파트)
201동 9층902호 (경기도 화성시 봉담읍 673,한울마을 신창비바패밀리아파트) |
1동의 건물 표시
경기도 화성시 봉담읍 673
한울마을 신창비바패밀리아파트
[도로명 주소]
경기도 화성시 수영로82번길 4 (한울마을 신창비바패밀리아파트)
[1동] 철근콘크리트구조 (철근)콘크리트지붕 17층 아파트
지1층 100.543㎡
1층 359.533㎡
2층 611.4372㎡
3층 611.4372㎡
4층 611.4372㎡
5층 611.4372㎡
6층 611.4372㎡
7층 611.4372㎡
8층 611.4372㎡
9층 611.4372㎡
10층 611.4372㎡
11층 611.4372㎡
12층 611.4372㎡
13층 611.4372㎡
14층 611.4372㎡
15층 611.4372㎡
16층 611.4372㎡
17층 611.4372㎡
[전유] 철근콘크리트구조
123.3429㎡
전유부분의 건물의 표시
건물의 번호 : 201동 9층902호
구 조 : 철근콘크리트구조 (철근)콘크리트지붕 17층 아파트
면 적 : 123.34㎡
대지권의 목적인 토지의 표시
[전유] 경기도 화성시 봉담읍 수영리 673 지목:대 면적:24372.1㎡ 지분:70.1928/24923.4
[전유] 경기도 화성시 봉담읍 수영리 673-1 지목:대 면적:551.3㎡ 지분:70.1928/24923.4
대지권의 종류 : 소유권
대지권의 비율 : 24923.4 분의 70.19
|
— |
감정평가서
| 감정평가법인 | 박지훈 | ||
|---|---|---|---|
| 감정기준일 | 2025년 03월 05일 | 감정가 | - |
감정평가 요점
감정평가 요점 — 위치/환경 (#1)
본건은 경기도 화성시 봉담읍 수영리 소재 ""수영초등학교"" 북측 인근에 위치하며, 인근은 아파트단지, 근린생활시설, 공장, 농경지 등이 혼재하는 지역으로서 주위환경은 보통시 됨.
감정평가 요점 — 건물의 구조 (#2)
본건까지 차량진출입이 가능하며, 인근에 버스정류장이 위치하는 등 전반적인 교통사정은 보통시 됨.
감정평가 요점 — 건물의 구조 (#3)
철근콘크리트구조 (철근)콘크리트지붕 17층 건 중, 제9층 제902호로서,
(사용승인일:2008.06.05.)
외벽: 몰탈위 페인팅 마감 등,
창호: 샷시 등임.
감정평가 요점 — 기타사항 (#4)
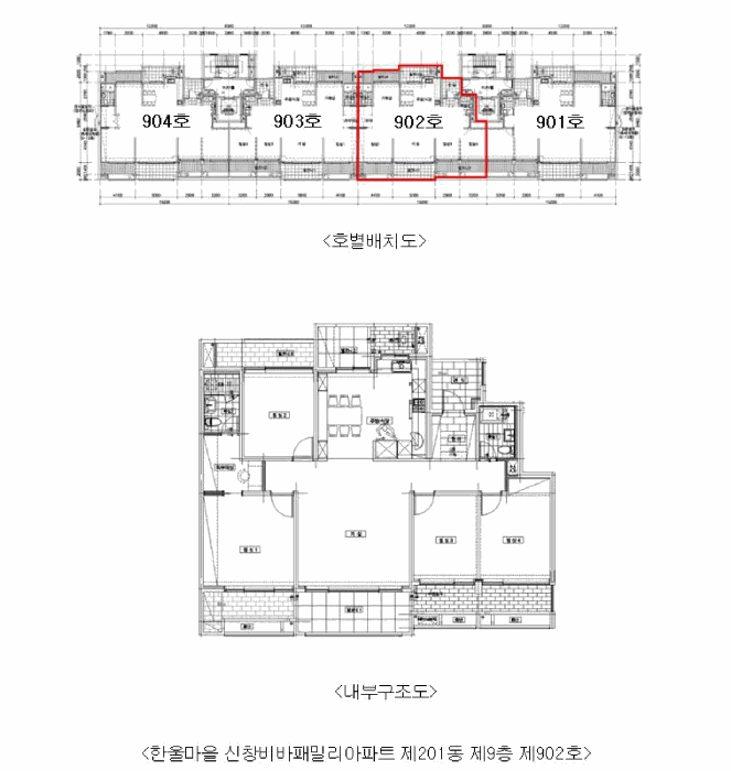
아파트로 이용중임 (첨부 ""내부구조도"" 참조)
감정평가 요점 — 설비내역 (#5)
기본적인 전기설비, 위생 및 급배수설비, 도시가스, 소화전설비, 화재탐지설비, 승강기 등이 구비되어 있음.
감정평가 요점 — 토지이용계획 및 제한상태 (#6)
2필지 일단의 대체로 등고평탄한 사다리형 토지로서, 아파트 건부지로 이용 중임.
감정평가 요점 — 설비내역 (#7)
본건 단지 외곽도로를 통해 인근 간선도로 등으로 접근가능하며, 남측에 노폭 약20미터 내외, 서측에 노폭 약12미터 내외, 북서측에 노폭 약8미터 내외의 포장된 도로와 접하고 있음.
감정평가 요점 — 토지이용계획 및 제한상태 (#8)
1. 수영리 673
제2종일반주거지역 , 지구단위계획구역(수영4지구) , 소로1류(폭 10m~12m)(접합) , 소로2류(폭 8m~10m)(접합) , 중로1류(폭 20m~25m)(접합) , 중로2류(폭 15m~20m)(접합) , 중로3류(폭 12m~15m)(접합) , 가축사육제한구역(2018-03-30)(전부제한구역)<가축분뇨의 관리 및 이용에 관한 법률>, 가축사육제한구역(전부제한)<가축분뇨의 관리 및 이용에 관한 법률>, 상대보호구역(화성오산교육지원청 문의)<교육환경 보호에 관한 법률>, 절대보호구역(화성오산교육지원청 문의)<교육환경 보호에 관한 법률>, 비행안전제6구역(전술)<군사기지 및 군사시설 보호법>, 성장관리권역<수도권정비계획법>이고,
2. 수영리 673-1
제2종일반주거지역 , 지구단위계획구역(수영4지구) , 중로3류(폭 12m~15m)(접합) , 가축사육제한구역(2018-03-30)(전부제한구역)<가축분뇨의 관리 및 이용에 관한 법률>, 가축사육제한구역(전부제한)<가축분뇨의 관리 및 이용에 관한 법률>, 상대보호구역(화성오산교육지원청 문의)<교육환경 보호에 관한 법률>, 비행안전제6구역(전술)<군사기지 및 군사시설 보호법>, 성장관리권역<수도권정비계획법>임.
감정평가 요점 — 공부와의 차이 (#9)
--.
감정평가 요점 — 기타참고사항(임대관례 및 기타) (#10)
임대차 관계는 미상임.
학군정보 1개교
__none__ 1
__none__
주변 편의시설 반경 500m · 5개
기타 편의시설 5
지에스25봉담
경기도 화성시 봉담읍 수영리 673
피자올레
경기도 화성시 봉담읍 수영리 673
신창한울공인중개사사무소
경기도 화성시 봉담읍 수영리 673
용인대수영태권도장
경기도 화성시 봉담읍 수영리 673
강릉장칼국수
경기도 화성시 봉담읍 수영리 673
경기도 아파트 매매지수
146.4
2026.01 기준 (2017.11=100)
140
141
141
141
142
142
142
143
144
144
145
146
출처: 한국부동산원
입지 종합 평가
D
47 점 / 100
교통
45
오목천역 1095m · 버스정류장 300m내 6개
학군
48
초 수영초등학교 129m · 중 화담중학교 1119m · 고 영신여자고등학교 1293m · 1km내 1개교
생활환경
45
편의시설 5개 · 한울2호공원 55m
건물
50
준공연도 미상
안전
50
경기 화성시 범죄 27,300건 (주의)
개발환경
50
토지이용계획 없음
사건상세조회
| 사건번호 | 2025타경54468 | 사건명 | 부동산임의경매 |
|---|---|---|---|
| 접수일자 | 2025.02.13 | 개시결정일자 | 2025.02.14 |
| 담당계 |
수원지방법원
| 경매9계
전화: (031)210-1269 | 집행관사무소: 031-213-4500 |
||
| 청구금액 | 3억 2,861만원 | 사건항고/정지 | - |
| 배당요구종기 | 2025.04.29 | 종국결과 | 미종국 |
| 기일 | 기일종류 | 기일장소 | 최저매각가격 |
|---|---|---|---|
| 2026.04.03(10:00) | 매각기일 | 수원지방법원 제101호 법정 | 416,000,000원 |
| 2026.05.08(10:00) | 매각기일 | 수원지방법원 제101호 법정 | 291,200,000원 |
| 2026.06.12(10:00) | 매각기일 | 수원지방법원 제101호 법정 | 416,000,000원 |
| 2026.06.19(14:00) | 매각결정기일 | 수원지방법원 제101호 법정 | - |
| 날짜 | 내용 | 결과 |
|---|---|---|
| 2026.05.27 | 임차인 LO OOOO 매각기일 및 매각결정기일통지서 발송 | |
| 2026.05.27 | 교부권자 국OOOOOOOOOOO 매각기일 및 매각결정기일통지서 발송 | 2026.05.28 도달 |
| 2026.05.27 | 교부권자 화OOOO 매각기일 및 매각결정기일통지서 발송 | |
| 2026.05.27 | 임차인 JOO OOOOOOO 매각기일 및 매각결정기일통지서 발송 | |
| 2026.05.27 | 교부권자 화OO 매각기일 및 매각결정기일통지서 발송 | |
| 2026.05.27 | 채권자대리인 이OO 매각기일 및 매각결정기일통지서 발송 | |
| 2026.05.27 | 채무자겸소유자 이OO 매각기일 및 매각결정기일통지서 발송 | 2026.05.28 도달 |
| 2026.05.27 | 배당요구권자 하OOOOOOOO 매각기일 및 매각결정기일통지서 발송 | |
| 2026.05.14 | 채권자 엠OOOOOOOOO 보정서 제출 | |
| 2026.05.14 | 채권자 엠OOOOOOOOO 경매속행 신청서 제출 | |
| 2026.04.30 | 채권자 엠OOOOOOOOO 점유자에대한무상거주의견서 제출 | |
| 2026.04.03 | 기타 최O 기일입찰조서 제출 | |
| 2026.03.16 | 채무자겸소유자 이OO 매각기일 및 매각결정기일통지서 발송 | 2026.03.17 도달 |
| 2026.03.16 | 채권자대리인 이OO 매각기일 및 매각결정기일통지서 발송 | 2026.03.17 도달 |
| 2026.03.16 | 교부권자 화OO 매각기일 및 매각결정기일통지서 발송 | 2026.03.17 송달간주 |
| 2026.03.16 | 배당요구권자 하OOOOOOOO 매각기일 및 매각결정기일통지서 발송 | 2026.03.17 송달간주 |
| 2026.03.16 | 임차인 LO OOOO 매각기일 및 매각결정기일통지서 발송 | 2026.03.17 송달간주 |
| 2026.03.16 | 임차인 JOO OOOOOOO 매각기일 및 매각결정기일통지서 발송 | 2026.03.17 송달간주 |
| 2026.03.16 | 교부권자 화OOOO 매각기일 및 매각결정기일통지서 발송 | 2026.03.17 송달간주 |
| 2026.03.16 | 교부권자 국OOOOOOOOOOO 매각기일 및 매각결정기일통지서 발송 | 2026.03.19 도달 |
인근매각물건사례
유의사항
- 매각물건명세서는 매각기일(입찰기간) 1주 전부터, 현황조사서와 감정평가서는 2주 전부터 매각기일(입찰기간)까지 법원에서 조회가 가능합니다.
- 본 서비스의 정보는 법원경매정보를 기반으로 재가공한 것이며, 실제 매각물건의 정보와 다를 수 있습니다. 입찰 전 반드시 법원에 비치된 물건명세서, 현황조사서, 감정평가서를 직접 확인하시기 바랍니다.
- 매수에 영향을 줄 수 있는 중요한 권리관계의 변동사항이 있을 수 있으므로, 입찰 참가 전 등기사항전부증명서를 반드시 확인하시기 바랍니다.
- 본 서비스에서 제공하는 KB 시세, 할인율, 낙찰 예상가 등 분석 데이터는 참고용이며, 이를 근거로 한 투자 판단에 대해 본 서비스는 책임을 지지 않습니다.