급매
D-2
이편한세상태재2단지
경기도 광주시 신현동 1237 이편한세상태재2단지 203동 10층1003호 · 203동동 1003호호 · 75㎡ · 10층
C
59점
입지점수
입찰일
2026년 06월 01일 (D-2)
성남지원
물건기본정보
급매
D-2
| 사건번호 | 2025타경52981 (부동산임의경매) | 물건종류 | 아파트 |
|---|---|---|---|
| 감정평가액 | 584,000,000원 | 최저매각가격 (매수신청보증금) |
584,000,000원
(1,771만원) |
| 입찰방법 | 기일입찰 | 매각기일 | 2026.04.07 10:30 본관 1층 경매법정 (D-2) |
| 소재지 | |||
| 담당 | 수원지방법원 안산지원 | 경매6계 | 사건접수 | 2025.08.01 |
| 경매개시일 | 2025.08.06 | 배당요구종기 | 2025.10.22 |
| 청구금액 | 1억 1,691만원 | 상태 | 진행 |
| 전용면적 | 74.99㎡ | 층수 | 10층 |
| 건물구조 | 철근콘크리트조 평슬래브 지붕 17층 아파트 | 준공연도 | - |
| 토지면적 | 32.51㎡ | 대지지분 | 32.51 / 4196.5 |
| 최선순위설정 | 2014.08.18.근저당권 | ||
물건 사진
1 / 10
×
‹
›
SISETUM 가격 분석
KB시세
255,000,000원
일반거래가 · 2026.03 기준
상한 267,500,000원
일반 255,000,000원
하한 245,000,000원
실거래가
605,000,000원
2026.03 기준
감정가
584,000,000원
최저입찰가
584,000,000원
최저가 기준 KB 할인율
-30.6%
실거래 대비 -3.5%
기일내역
| 기일 | 기일종류 | 기일장소 | 최저매각가격 | 결과 |
|---|---|---|---|---|
| 2026.02.24(10:30) | 매각기일 | 본관 1층 경매법정 | 253,000,000원 | 유찰 |
| 2026.04.07(10:30) | 매각기일 | 본관 1층 경매법정 | 177,100,000원 | - |
| 2026.04.14(14:00) | 매각결정기일 | 본관 1층 경매법정 | - | - |
목록내역
| 목록번호 | 목록구분 | 상세내역 |
|---|---|---|
| 1 | 집합건물 |
1동의 건물 표시
경기도 광주시 신현동 1237
이편한세상태재2단지
[도로명 주소]
경기도 시흥시 도일로135번길 42 (거모동,아주4차아파트)
[1동] 철근콘크리트조 평슬래브 지붕 17층 아파트
지층 3031.74㎡
1층 756.105㎡
2층 743.085㎡
3층 743.085㎡
4층 743.085㎡
5층 743.085㎡
6층 743.085㎡
7층 743.085㎡
8층 743.085㎡
9층 743.085㎡
10층 743.085㎡
11층 743.085㎡
12층 743.085㎡
13층 743.085㎡
14층 743.085㎡
15층 743.085㎡
16층 743.085㎡
17층 743.085㎡
조적조 슬래브지붕 단층 노인정
35.46㎡
(내역:지층은 주차장,기계실,
대피소
1층 내지 17층은 아파트임)
[전유] 철근콘크리트조
84.465㎡
전유부분의 건물의 표시
건물의 번호 : 203동 10층1003호
구 조 : 철근콘크리트조 평슬래브 지붕 17층 아파트
면 적 : 74.99㎡
대지권의 목적인 토지의 표시
[전유] 경기도 시흥시 거모동 1474-8 지목:임야 면적:47㎡ 지분:32.512/4196.5
[전유] 경기도 시흥시 거모동 1474-9 지목:임야 면적:24㎡ 지분:32.512/4196.5
[전유] 경기도 시흥시 거모동 1474-14 지목:전 면적:96㎡ 지분:32.512/4196.5
[전유] 경기도 시흥시 거모동 1476-1 지목:임야 면적:525㎡ 지분:32.512/4196.5
[전유] 경기도 시흥시 거모동 1476-2 지목:임야 면적:613㎡ 지분:32.512/4196.5
[전유] 경기도 시흥시 거모동 1476-3 지목:임야 면적:285㎡ 지분:32.512/4196.5
[전유] 경기도 시흥시 거모동 1476-6 지목:임야 면적:25㎡ 지분:32.512/4196.5
[전유] 경기도 시흥시 거모동 1476-7 지목:전 면적:1467㎡ 지분:32.512/4196.5
[전유] 경기도 시흥시 거모동 1476-13 지목:임야 면적:278㎡ 지분:32.512/4196.5
[전유] 경기도 시흥시 거모동 1477 지목:전 면적:456㎡ 지분:32.512/4196.5
[전유] 경기도 시흥시 거모동 1481-6 지목:전 면적:42㎡ 지분:32.512/4196.5
[전유] 경기도 시흥시 거모동 1484-3 지목:전 면적:342㎡ 지분:32.512/4196.5
대지권의 종류 : 소유권
대지권의 비율 : 4196.5 분의 32.51
|
경매 진행 타임라인
1차 경매
253,000,000원
2026.02.24
유찰
2차 경매
177,100,000원
2026.04.07
진행중
현재 진행중
현황조사서
| 사건번호 | 2025타경52981 | 조사일시 | 2025년08월14일12시15분 |
|---|
부동산의 점유관계
부동산의 현황
- 건물 정면
부동산표시목록
| 번호 | 소재지 | 용도/구조/면적 | 비고 |
|---|---|---|---|
| 1 |
경기도 시흥시 도일로135번길 42 (거모동,아주4차아파트)
203동 10층1003호 (경기도 광주시 신현동 1237,이편한세상태재2단지) |
1동의 건물 표시
경기도 광주시 신현동 1237
이편한세상태재2단지
[도로명 주소]
경기도 시흥시 도일로135번길 42 (거모동,아주4차아파트)
[1동] 철근콘크리트조 평슬래브 지붕 17층 아파트
지층 3031.74㎡
1층 756.105㎡
2층 743.085㎡
3층 743.085㎡
4층 743.085㎡
5층 743.085㎡
6층 743.085㎡
7층 743.085㎡
8층 743.085㎡
9층 743.085㎡
10층 743.085㎡
11층 743.085㎡
12층 743.085㎡
13층 743.085㎡
14층 743.085㎡
15층 743.085㎡
16층 743.085㎡
17층 743.085㎡
조적조 슬래브지붕 단층 노인정
35.46㎡
(내역:지층은 주차장,기계실,
대피소
1층 내지 17층은 아파트임)
[전유] 철근콘크리트조
84.465㎡
전유부분의 건물의 표시
건물의 번호 : 203동 10층1003호
구 조 : 철근콘크리트조 평슬래브 지붕 17층 아파트
면 적 : 74.99㎡
대지권의 목적인 토지의 표시
[전유] 경기도 시흥시 거모동 1474-8 지목:임야 면적:47㎡ 지분:32.512/4196.5
[전유] 경기도 시흥시 거모동 1474-9 지목:임야 면적:24㎡ 지분:32.512/4196.5
[전유] 경기도 시흥시 거모동 1474-14 지목:전 면적:96㎡ 지분:32.512/4196.5
[전유] 경기도 시흥시 거모동 1476-1 지목:임야 면적:525㎡ 지분:32.512/4196.5
[전유] 경기도 시흥시 거모동 1476-2 지목:임야 면적:613㎡ 지분:32.512/4196.5
[전유] 경기도 시흥시 거모동 1476-3 지목:임야 면적:285㎡ 지분:32.512/4196.5
[전유] 경기도 시흥시 거모동 1476-6 지목:임야 면적:25㎡ 지분:32.512/4196.5
[전유] 경기도 시흥시 거모동 1476-7 지목:전 면적:1467㎡ 지분:32.512/4196.5
[전유] 경기도 시흥시 거모동 1476-13 지목:임야 면적:278㎡ 지분:32.512/4196.5
[전유] 경기도 시흥시 거모동 1477 지목:전 면적:456㎡ 지분:32.512/4196.5
[전유] 경기도 시흥시 거모동 1481-6 지목:전 면적:42㎡ 지분:32.512/4196.5
[전유] 경기도 시흥시 거모동 1484-3 지목:전 면적:342㎡ 지분:32.512/4196.5
대지권의 종류 : 소유권
대지권의 비율 : 4196.5 분의 32.51
|
— |
감정평가서
| 감정평가법인 | 김수현 | ||
|---|---|---|---|
| 감정기준일 | 2025년 08월 12일 | 감정가 | - |
감정평가 요점
감정평가 요점 — 위치/환경 (#1)
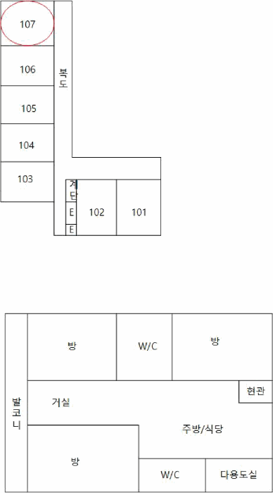
본건은 경기도 시흥시 거모동에 소재하는 ‘군자초등학교’ 북서측 인근에 위치하는 아주4차아파트 401동 1층 107호로 주위는 아파트단지, 근린생활시설, 다세대주택 등이 혼재하는 주거지대로 주위환경은 보통시됩니다.
감정평가 요점 — 건물의 구조 (#2)
본건은 인근에 시내버스정류장이 소재하고 본건까지 차량접근이 가능하여 대중교통상황은 보통시됩니다.
감정평가 요점 — 건물의 구조 (#3)
본건은 철근콘크리트조 평슬래브지붕 17층 중 1층 107호로
외 벽: 몰탈 위 페인트 마감
내 벽: 벽지 마감 및 일부 타일 마감
창 호: 샷시 창호입니다.
감정평가 요점 — 기타사항 (#4)
본건은 아파트(방3,W.C.2개,거실,주방/식당,현관,다용도실,발코니 등)로 이용중입니다.
감정평가 요점 — 설비내역 (#5)
본건은 급배수설비, 전기설비, 위생설비, 화재탐지설비, 승강기설비, 주차장설비, 위생설비 등이 되어 있습니다.
감정평가 요점 — 토지이용계획 및 제한상태 (#6)
본건은 대체로 장방형 평지로 아파트 부지로 이용중입니다.
감정평가 요점 — 설비내역 (#7)
본건은 단지 내 도로 및 진입도로와 접합니다.
감정평가 요점 — 토지이용계획 및 제한상태 (#8)
도시지역, 제3종일반주거지역, 소로1류(폭 10m~12m)(국지도로)(접합), 소로2류(폭 8m~10m)(국지도로)(접합), 가축사육제한구역<가축분뇨의 관리 및 이용에 관한 법률>, 상대보호구역(2013-07-18)<교육환경 보호에 관한 법률>, 과밀억제권역<수도권정비계획법>입니다.
감정평가 요점 — 공부와의 차이 (#9)
없습니다.
감정평가 요점 — 기타참고사항(임대관례 및 기타) (#10)
임대관계는 미상입니다.
학군정보 1개교
__none__ 1
__none__
경기도 아파트 매매지수
146.4
2026.01 기준 (2017.11=100)
140
141
141
141
142
142
142
143
144
144
145
146
출처: 한국부동산원
입지 종합 평가
C
59 점 / 100
교통
45
陵도역 1649m · 버스정류장 300m내 6개
학군
85
초 군자초등학교 397m · 중 군자중학교 654m · 고 군자디지털과학고등학교 626m · 1km내 4개교
생활환경
55
편의시설 데이터 없음 · 한우물공원 48m
건물
50
준공연도 미상
안전
70
경기 광주시 범죄 11,494건 (보통)
개발환경
50
토지이용계획 없음
사건상세조회
| 사건번호 | 2025타경52981 | 사건명 | 부동산임의경매 |
|---|---|---|---|
| 접수일자 | 2025.08.01 | 개시결정일자 | 2025.08.06 |
| 담당계 |
수원지방법원
| 경매6계
전화: 031-481-1192 | 집행관사무소: 031-414-3388 |
||
| 청구금액 | 1억 1,691만원 | 사건항고/정지 | - |
| 배당요구종기 | 2025.10.22 | 종국결과 | 미종국 |
| 기일 | 기일종류 | 기일장소 | 최저매각가격 |
|---|---|---|---|
| 2026.02.24(10:30) | 매각기일 | 본관 1층 경매법정 | 253,000,000원 |
| 2026.04.07(10:30) | 매각기일 | 본관 1층 경매법정 | 177,100,000원 |
| 2026.04.14(14:00) | 매각결정기일 | 본관 1층 경매법정 | - |
| 날짜 | 내용 | 결과 |
|---|---|---|
| 2026.02.24 | 기타 권OO 기일입찰조서 제출 | |
| 2026.01.27 | 교부권자 시OO 매각기일 및 매각결정기일통지서 발송 | 2026.01.28 도달 |
| 2026.01.27 | 교부권자 국OOOOOOO OOOO(OOOO) 매각기일 및 매각결정기일통지서 발송 | 2026.01.28 도달 |
| 2026.01.27 | 소유자 김OO 매각기일 및 매각결정기일통지서 발송 | 2026.01.28 송달간주 |
| 2026.01.27 | 채권자 에OOOOOOOOOOOOOOOOO(OOOOOOOOOOOO) 매각기일 및 매각결정기일통지서 발송 | 2026.01.28 도달 |
| 2026.01.27 | 배당요구권자 롯OOOOOOOO 매각기일 및 매각결정기일통지서 발송 | 2026.01.28 송달간주 |
| 2026.01.27 | 채무자겸소유자 심OO 매각기일 및 매각결정기일통지서 발송 | 2026.01.28 송달간주 |
| 2025.10.16 | 교부권자 시OO 교부청구서 제출 | |
| 2025.10.02 | 배당요구권자 롯OOOOOOOO 권리신고및배당요구신청 제출 | |
| 2025.10.02 | 배당요구권자 롯OOOOOOOO 채권계산서 제출 | |
| 2025.09.30 | 소유자 김OO 열람및복사신청 제출 | |
| 2025.09.08 | 가압류권자 주OOOOOOO 권리신고및배당요구신청 제출 | |
| 2025.08.20 | 감정인 웰OOOOOOOOO 회보서 제출 | |
| 2025.08.20 | 기타 성OO 현황조사보고서 제출 | |
| 2025.08.20 | 집행관 성OO 현황조사서 제출 | |
| 2025.08.19 | 채권자 에OOOOOOOOOOOOOOOOO(OOOOOOOOOOOO) 송달장소 및 송달영수인 신고서 제출 | |
| 2025.08.19 | 이해관계인 국OOOOOOO OOOO(OOOO) 교부청구서 제출 | |
| 2025.08.19 | 기타 김OO 감정평가서 제출 | |
| 2025.08.08 | 주무관서 국OOOOOOO OOOO 최고서 발송 | 2025.08.11 송달간주 |
| 2025.08.08 | 주무관서 시OOOO 최고서 발송 | 2025.08.11 송달간주 |
인근매각물건사례
유의사항
- 매각물건명세서는 매각기일(입찰기간) 1주 전부터, 현황조사서와 감정평가서는 2주 전부터 매각기일(입찰기간)까지 법원에서 조회가 가능합니다.
- 본 서비스의 정보는 법원경매정보를 기반으로 재가공한 것이며, 실제 매각물건의 정보와 다를 수 있습니다. 입찰 전 반드시 법원에 비치된 물건명세서, 현황조사서, 감정평가서를 직접 확인하시기 바랍니다.
- 매수에 영향을 줄 수 있는 중요한 권리관계의 변동사항이 있을 수 있으므로, 입찰 참가 전 등기사항전부증명서를 반드시 확인하시기 바랍니다.
- 본 서비스에서 제공하는 KB 시세, 할인율, 낙찰 예상가 등 분석 데이터는 참고용이며, 이를 근거로 한 투자 판단에 대해 본 서비스는 책임을 지지 않습니다.